The Glenmore,


Starting from $948,800+

  • 4

    Bedrooms

  • 2.5

    Bathrooms

  • 2,675

    Square Feet

  • 2

    Garages

  • 2

    Stories

The Glenmore Features

The Glenmore at Hilan Village is a beautifully designed 2,675 sq. ft. modern farmhouse that blends timeless architecture with thoughtfully curated finishes.

This two-storey home features 4 spacious bedrooms and 2.5 baths, offering a functional layout designed for modern family living. The main
level is finished with 5.5-inch engineered oak hardwood flooring and elegant porcelain tile, complemented by custom shaker cabinetry and
quartz countertops throughout the kitchen and bathrooms.

The striking exterior features engineered-wood siding on all sides, bold black windows and trim, and a welcoming full-width front porch, anchored
by an impressive 8-foot glazed entryway with warm wood accents— creating a sophisticated yet inviting presence on the street.

As a Hilan Village resident, you will enjoy a rare connection to nature and small-town charm. A scenic rail trail provides a peaceful 10-minute walk to
downtown shops, cafés, and restaurants, while every resident benefits from direct views to the Mississippi River through the Lookout Park.

The Glenmore is where modern farmhouse design meets an exceptional riverside lifestyle.

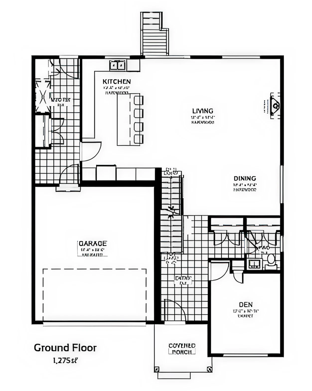
Explore the Layout

Floor plans and dimensions subject to change.

Standard Features

The Glenmore

  • KITCHEN

    • Quartz countertops
    • Custom cabinetry with slow close
    • Moen fixtures in choice of finishes

  • FLOORING & FINISHES

    • 5.5" Engineered oak floors
    • Porcelain 12x24 inch tile
    • 40 oz carpet with premium underpad

  • BATHROOMS

    • Porcelain 12x24 inch tiles
    • Custom shower glass
    • Quartz countertops on all vanities

  • ELECTRICAL & MECHANICAL

    • 200 amp electrical service
    • High efficiency gas furnace
    • Air Conditioning
    • HRV System

Ready to Take the Next Step?

Register your interest or book a consultation to learn more about availability, pricing, and next steps.

Previous
Previous

The Lar Ridge (End unit)